














Book your tour. Save an average of $18,473. We'll handle the rest.
- Confirmed tours
- Get matched & compare top deals
- Expert help, no pressure
- No added fees
Estimated value based on Jome data, T&C apply








































- 3 bd
- 3 ba
- 1,976 sqft
460 87th Avenue N, St. Petersburg, FL 33702
Why tour with Jome?
- No pressure toursTour at your own pace with no sales pressure
- Expert guidanceGet insights from our home buying experts
- Exclusive accessSee homes and deals not available elsewhere
Jome is featured in
- Townhouse
- Quick move-in
- $419.53/sqft
- $391.56/monthly HOA
Home description
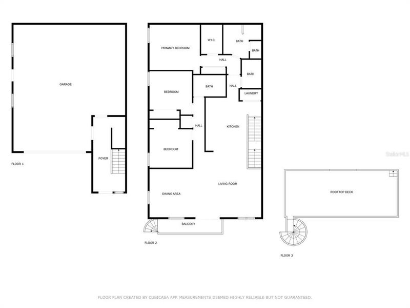
Incredible 4.99% rates! Unlock luxury living and an unbeatable deal. Terraces at 87th’s preferred lender is offering an unbeatable 4.99% interest rate. Opportunities like this don’t come often! Welcome to the newly completed Terraces at 87th, an exclusive townhome community, where luxury and convenience come together! Designed for modern living, these maintenance-free homes feature resort-style amenities, including a community pool, dog park, fire pits, grilling stations, and a relaxing lounge area—perfect for enjoying the Florida lifestyle. Each home offers spaciousness and premium details, with an expansive 4-car garage that provides unmatched space for all your vehicles, toys, and storage needs. Plus, the garages are pre-wired for electric car charging, making them future-ready. Inside, you'll find a thoughtfully-designed, single-level floor plan with an open-concept living area, abundant natural light, and 9-foot ceilings. The kitchen, perfect for entertaining, features 42-inch cabinetry, a waterfall island, and gas stainless steel appliances. The owner’s suite offers a private retreat with a walk-in closet, morning bar, and a spa-like walk-in shower. Each home also features a private rooftop terrace, perfect for relaxing or entertaining, with options like a jacuzzi tub, summer kitchen, or solar panels. Experience the best in luxury living with this highly amenitized community! Contact us to learn more and schedule your visit.
SMITH & ASSOCIATES REAL ESTATE, MLS TB8342579
May also be listed on the Belleair Development Group website
Information last verified by Jome: Today at 10:18 AM (December 23, 2025)
Home highlights
MacDill AFB offers secure housing, top-rated schools, and abundant amenities in vibrant South Tampa.
Book your tour. Save an average of $18,473. We'll handle the rest.
We collect exclusive builder offers, book your tours, and support you from start to housewarming.
- Confirmed tours
- Get matched & compare top deals
- Expert help, no pressure
- No added fees
Estimated value based on Jome data, T&C apply
Home details
- Property status:
- Move-in ready
- Lot size (acres):
- 0.06
- Size:
- 1,976 sqft
- Stories:
- 2
- Beds:
- 3
- Baths:
- 3
- Garage spaces:
- 4
- Facing direction:
- South
Construction details
- Builder Name:
- Belleair Development Group
- Year Built:
- 2024
- Roof:
- Membrane Roofing
Home features & finishes
- Appliances:
- Exhaust Fan
- Construction Materials:
- StuccoBlock
- Cooling:
- Central Air
- Flooring:
- Vinyl FlooringCarpet Flooring
- Foundation Details:
- Slab
- Garage/Parking:
- Car CarportParkingDoor OpenerGarageAttached Garage
- Interior Features:
- Ceiling-HighWalk-In ClosetCrown MoldingFoyerPantry
- Kitchen:
- DishwasherMicrowave OvenRefrigeratorDisposalKitchen Range
- Laundry facilities:
- Utility/Laundry Room
- Pets:
- Pets Allowed
- Property amenities:
- SidewalkBalconyLandscapingCabinets
- Rooms:
- Primary Bedroom On MainKitchenFamily RoomOpen Concept FloorplanPrimary Bedroom Downstairs

Get a consultation with our New Homes Expert
- See how your home builds wealth
- Plan your home-buying roadmap
- Discover hidden gems
Utility information
- Heating:
- Electric Heating, Water Heater, Gas Heating, Tankless water heater
- Utilities:
- Electricity Available, Natural Gas Available, Cable Available

Community details
Terraces at 87th
by Belleair Development Group, St. Petersburg, FL
- 4 homes
- 1,976 - 1,976 sqft
View Terraces at 87th details
Community amenities
- Dog Park
- Community Pool
- Sidewalks Available
More homes in Terraces at 87th
About the builder - Belleair Development Group
Neighborhood
Home address
- City:
- St. Petersburg
- County:
- Pinellas
- Zip Code:
- 33702
Schools in Pinellas County School District
- Grades 02-12Privatedolphin stem academy0.5 mi7901 4th st n # 300na
GreatSchools’ Summary Rating calculation is based on 4 of the school’s themed ratings, including test scores, student/academic progress, college readiness, and equity. This information should only be used as a reference. Jome is not affiliated with GreatSchools and does not endorse or guarantee this information. Please reach out to schools directly to verify all information and enrollment eligibility. Data provided by GreatSchools.org © 2025
Places of interest
Getting around
7 nearby routes: 7 bus, 0 rail, 0 otherAir quality
Noise level
A Soundscore™ rating is a number between 50 (very loud) and 100 (very quiet) that tells you how loud a location is due to environmental noise.
Natural hazards risk
Climate hazards can impact homes and communities, with risks varying by location. These scores reflect the potential impact of natural disasters and climate-related risks on Pinellas County
Provided by FEMA

Considering this home?
Our expert will guide your tour, in-person or virtual
Need more information?
Text or call (888) 486-2818
Financials
Estimated monthly payment
Let us help you find your dream home
How many bedrooms are you looking for?
Similar homes nearby
Recently added communities in this area
Nearby communities in St. Petersburg
New homes in nearby cities
More New Homes in St. Petersburg, FL
SMITH & ASSOCIATES REAL ESTATE, MLS TB8342579
Based on information submitted to the MLS GRID as of 10/21/2024 2:31 PM CDT. All data is obtained from various sources and may not have been verified by broker or MLS GRID. Supplied Open House Information is subject to change without notice. All information should be independently reviewed and verified for accuracy. Properties may or may not be listed by the office/agent presenting the information. Some IDX listings have been excluded from this website. Properties displayed may be listed or sold by various participants in the MLS. IDX information is provided exclusively for personal, non-commercial use, and may not be used for any purpose other than to identify prospective properties consumers may be interested in purchasing. Information is deemed reliable but not guaranteed. Use of the MLS GRID Data may be subject to an end user license agreement prescribed by the Member Participant’s applicable MLS if any and as amended from time to time. The Digital Millennium Copyright Act of 1998, 17 U.S.C. § 512 (the “DMCA”) provides recourse for copyright owners who believe that material appearing on the Internet infringes their rights under U.S. copyright law. If you believe in good faith that any content or material made available in connection with our website or services infringes your copyright, you (or your agent) may send us a notice requesting that the content or material be removed, or access to it blocked. Notices must be sent in writing by email to DMCAnotice@MLSGrid.com. The DMCA requires that your notice of alleged copyright infringement include the following information: (1) description of the copyrighted work that is the subject of claimed infringement; (2) description of the alleged infringing content and information sufficient to permit us to locate the content; (3) contact information for you, including your address, telephone number and email address; (4) a statement by you that you have a good faith belief that the content in the manner complained of is not authorized by the copyright owner, or its agent, or by the operation of any law; (5) a statement by you, signed under penalty of perjury, that the information in the notification is accurate and that you have the authority to enforce the copyrights that are claimed to be infringed; and (6) a physical or electronic signature of the copyright owner or a person authorized to act on the copyright owner’s behalf. Failure to include all of the above information may result in the delay of the processing of your complaint. Listing Information presented by local MLS brokerage: NewHomesMate LLC, DBA Jome (888) 486-2818
Read moreLast checked Dec 23, 9:10 am
- Jome
- New homes search
- Florida
- Tampa Bay Area
- Pinellas County
- St. Petersburg
- Terraces at 87th
- 460 87th Avenue N, St. Petersburg, FL 33702





























