














Book your tour. Save an average of $18,473. We'll handle the rest.
We collect exclusive builder offers, book your tours, and support you from start to housewarming.
- Confirmed tours
- Get matched & compare top deals
- Expert help, no pressure
- No added fees
Estimated value based on Jome data, T&C apply
































Why tour with Jome?
- No pressure toursTour at your own pace with no sales pressure
- Expert guidanceGet insights from our home buying experts
- Exclusive accessSee homes and deals not available elsewhere
Jome is featured in
- Single-Family
- Quick move-in
- $396.57/sqft
- $310/monthly HOA
Home description
Exceptional Contemporary Home in Delray Trails 55+ Community - Modern Design and Prime Location!
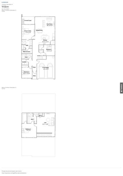
Presenting a beautifully designed, contemporary, and extensively upgraded new residence located in the highly sought-after, sold-out single-family homes section of Delray Trails—a vibrant 55+ community. This exceptional home is just a 10-minute drive from the bustling downtown area of Delray Beach, offering both convenience and an active lifestyle. Spacious and Stylish Living Spaces - This impressive 4-bedroom, 3-bath home includes a generous loft space, blending modern style with superior comfort. The open-concept layout showcases sleek finishes and stylish décor throughout. Option to keep the furnishings, allowing for a seamless and carefree move—simply bring your clothes and settle in! Gourmet Kitchen and Elegant Bedrooms - At the heart of the home is a grand kitchen island, ideal for entertaining guests. The kitchen features stainless steel appliances and plenty of counter space, catering to every culinary need. Each spacious bedroom is equipped with massive, customized closets, providing ample storage. The bathrooms are all upgraded with striking fixtures and frameless shower enclosures, adding a touch of luxury to everyday living. All furniture and furnishings are brand new and beautifully selected to complement the home's modern aesthetic. Premium Features and Community Amenities - This residence is set on a professionally landscaped lot with a privacy hedge, ensuring a serene and private outdoor environment. The home is equipped with a state-of-the-art security system, including cameras, high-speed Internet, and a two-car garage for added convenience and peace of mind.
Residents of Delray Trails enjoy a wealth of on-site amenities, including swimming pools, a clubhouse, tennis and pickleball courts, a fitness center, and scenic walking trails. Experience the best of South Florida living at an exceptional value priced at just $396 per square foot, with monthly maintenance under $400 and annual taxes less than $10,000.
One Sotheby's International Realty, MLS R11140879
May also be listed on the Lennar website
Information last verified by Jome: Yesterday at 10:20 AM (February 25, 2026)
Home highlights
Book your tour. Save an average of $18,473. We'll handle the rest.
We collect exclusive builder offers, book your tours, and support you from start to housewarming.
- Confirmed tours
- Get matched & compare top deals
- Expert help, no pressure
- No added fees
Estimated value based on Jome data, T&C apply
Home details
- Property status:
- Move-in ready
- Collection:
- Delray Trails: The Woods
- Lot size (acres):
- 0.11
- Size:
- 2,509 sqft
- Stories:
- 2
- Beds:
- 4
- Baths:
- 3
- Garage spaces:
- 2
- Facing direction:
- West
Construction details
- Builder Name:
- Lennar
- Year Built:
- 2024
Home features & finishes
- Cooling:
- Ceiling Fan(s)Central Air
- Flooring:
- Ceramic FlooringVinyl FlooringCarpet FlooringTile Flooring
- Garage/Parking:
- Door OpenerGarageAttached Garage
- Interior Features:
- Ceiling-HighCeiling-VaultedWalk-In ClosetFoyerPantryBlindsStorageLoftSeparate Shower
- Kitchen:
- DishwasherMicrowave OvenRefrigeratorDisposalDouble SinkKitchen Range
- Laundry facilities:
- DryerWasherUtility/Laundry Room
- Lighting:
- Exterior Lighting
- Pets:
- Pets AllowedPets Allowed with Weight Restrictions
- Property amenities:
- BarOutdoor LivingPatioPorch
- Rooms:
- KitchenDining RoomFamily RoomBreakfast AreaOpen Concept FloorplanPrimary Bedroom Upstairs
- Security system:
- Fire Alarm SystemSecurity SystemSmoke Detector
Room details
Master Bedroom
Kitchen
Living Room

Get a consultation with our New Homes Expert
- See how your home builds wealth
- Plan your home-buying roadmap
- Discover hidden gems
Utility information
- Heating:
- Electric Heating, Water Heater, Central Heating
- Utilities:
- Electricity Available, Cable Available, Sewer Available, Water Available

Community details
Delray Trails
by Lennar, Delray Beach, FL
- 7 homes
- 3 plans
- 1,305 - 2,509 sqft
View Delray Trails details
Community amenities
- Club House
- Tennis Courts
- Gated Community
- Community Pool
- Game Room/Area
- Lifestyle Director
- Sidewalks Available
- Waterfront View
- High Speed Internet Access
- Pickleball Court
- Club Room
More homes in Delray Trails
- Home at address 13634 Jubilee Ln, Delray Beach, FL 33484

Larkspur
Delray Trails: The Villas
$463,590
- 2 bd
- 2 ba
- 1,308 sqft
13634 Jubilee Ln, Delray Beach, FL 33484
- Home at address 13628 Jubilee Ln, Delray Beach, FL 33484

Larkspur
Delray Trails: The Villas
$469,165
- 2 bd
- 2 ba
- 1,308 sqft
13628 Jubilee Ln, Delray Beach, FL 33484
- Home at address 13616 Jubilee Ln, Delray Beach, FL 33484

Larkspur
Delray Trails: The Villas
$475,015
- 2 bd
- 2 ba
- 1,308 sqft
13616 Jubilee Ln, Delray Beach, FL 33484
- Home at address 13635 Jubilee Ln, Delray Beach, FL 33484

Hibiscus
Delray Trails: The Villas
$504,795
- 2 bd
- 2 ba
- 1,308 sqft
13635 Jubilee Ln, Delray Beach, FL 33484
- Home at address 13683 Jubilee Ln, Delray Beach, FL 33484

Orchid
Delray Trails: The Villas
$507,330
- 2 bd
- 2 ba
- 1,305 sqft
13683 Jubilee Ln, Delray Beach, FL 33484
- Home at address 5726 Graceful Wy, Delray Beach, FL 33484

Home
$649,000
- 3 bd
- 2 ba
- 1,614 sqft
5726 Graceful Wy, Delray Beach, FL 33484
Floor plans in Delray Trails
About the builder - Lennar

- 1,752communities on Jome
- 6,546homes on Jome
Neighborhood
Home address
- City:
- Delray Beach
- County:
- Palm Beach
- Zip Code:
- 33484
Schools in Palm Beach County School District
- Grades 09-12Privateambrose bay high school1.3 mi616 nw 45th drna
GreatSchools’ Summary Rating calculation is based on 4 of the school’s themed ratings, including test scores, student/academic progress, college readiness, and equity. This information should only be used as a reference. Jome is not affiliated with GreatSchools and does not endorse or guarantee this information. Please reach out to schools directly to verify all information and enrollment eligibility. Data provided by GreatSchools.org © 2025
Places of interest
Getting around
Air quality

Considering this home?
Our expert will guide your tour, in-person or virtual
Need more information?
Text or call (888) 488-9243
Financials
Estimated monthly payment
Let us help you find your dream home
How many bedrooms are you looking for?
Similar homes nearby
Recently added communities in this area
Nearby communities in Delray Beach
New homes in nearby cities
More New Homes in Delray Beach, FL
One Sotheby's International Realty, MLS R11140879
All listings featuring the BMLS logo are provided by BeachesMLS, Inc. This information is not verified for authenticity or accuracy and is not guaranteed. Information is provided exclusively for consumers’ personal, non-commercial use and may not be used for any purpose other than to identify prospective properties consumers may be interested in purchasing. Copyright © 2025 BeachesMLS, Inc.
Read moreLast checked Feb 26, 12:00 am
- Jome
- New homes search
- Florida
- Miami Metropolitan Area
- Palm Beach County
- Delray Beach
- Delray Trails
- Delray Trails: The Woods
- 13404 Brotherhood Way, Delray Beach, FL 33484



























