



Book your tour. Save an average of $18,473. We'll handle the rest.
We collect exclusive builder offers, book your tours, and support you from start to housewarming.
- Confirmed tours
- Get matched & compare top deals
- Expert help, no pressure
- No added fees
Estimated value based on Jome data, T&C apply
- 3 bd
- 2 ba
- 1,700 sqft
653 Hennepin Loop, Lake Wales, FL 33898
Why tour with Jome?
- No pressure toursTour at your own pace with no sales pressure
- Expert guidanceGet insights from our home buying experts
- Exclusive accessSee homes and deals not available elsewhere
Jome is featured in
- Single-Family
- $600/annual HOA
- 612 days on Jome
Home description
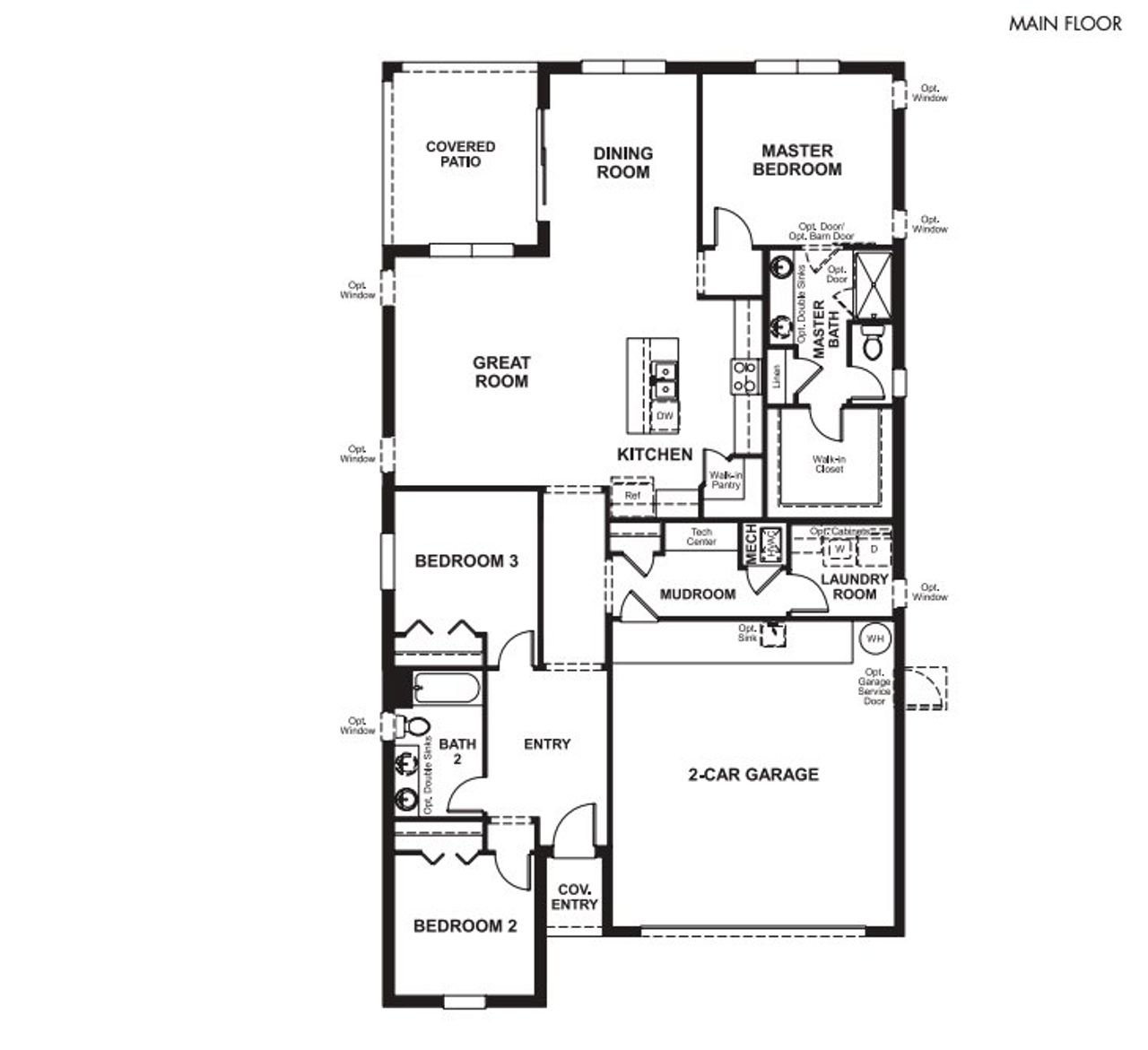
Explore this must-see Azure model home! Included features: an inviting covered entry; a spacious great room; an impressive kitchen offering quartz countertops, 42" cabinets, a walk-in pantry and a center island; an elegant dining room; a lavish primary suite showcasing a generous walk-in closet and a private bath; a convenient laundry; a covered patio and a 2-car garage.
May also be listed on the Richmond American Homes website
Information last verified by Jome: Thursday at 11:57 AM (November 21, 2024)
Book your tour. Save an average of $18,473. We'll handle the rest.
We collect exclusive builder offers, book your tours, and support you from start to housewarming.
- Confirmed tours
- Get matched & compare top deals
- Expert help, no pressure
- No added fees
Estimated value based on Jome data, T&C apply
Home details
- Property status:
- Not available
- Size:
- 1,700 sqft
- Stories:
- 1
- Beds:
- 3
- Baths:
- 2
- Garage spaces:
- 2
Construction details
- Builder Name:
- Richmond American Homes
Home features & finishes
- Garage/Parking:
- GarageAttached Garage
- Interior Features:
- Walk-In Closet
- Laundry facilities:
- Utility/Laundry Room
- Property amenities:
- Porch
- Rooms:
- Primary Bedroom On MainKitchenDining RoomFamily RoomPrimary Bedroom Downstairs

Get a consultation with our New Homes Expert
- See how your home builds wealth
- Plan your home-buying roadmap
- Discover hidden gems

Community details
Seasons at Mabel Place
by Richmond American Homes, Winter Haven, FL
View Seasons at Mabel Place details
About the builder - Richmond American Homes
Neighborhood
Home address
- City:
- Lake Wales
- County:
- Polk
- Zip Code:
- 33898
Schools in Polk County School District
GreatSchools’ Summary Rating calculation is based on 4 of the school’s themed ratings, including test scores, student/academic progress, college readiness, and equity. This information should only be used as a reference. Jome is not affiliated with GreatSchools and does not endorse or guarantee this information. Please reach out to schools directly to verify all information and enrollment eligibility. Data provided by GreatSchools.org © 2025
Places of interest
Getting around
Air quality
Noise level
A Soundscore™ rating is a number between 50 (very loud) and 100 (very quiet) that tells you how loud a location is due to environmental noise.

Considering this home?
Our expert will guide your tour, in-person or virtual
Need more information?
Text or call (888) 545-5198
Financials
Let us help you find your dream home
How many bedrooms are you looking for?
Similar homes nearby
Recently added communities in this area
Nearby communities in Lake Wales
New homes in nearby cities
More New Homes in Lake Wales, FL
- Jome
- New homes search
- Florida
- Greater Orlando Area
- Polk County
- Lake Wales
- Seasons at Mabel Place
- 653 Hennepin Loop, Lake Wales, FL 33898





























