













Book your tour. Save an average of $18,473. We'll handle the rest.
We collect exclusive builder offers, book your tours, and support you from start to housewarming.
- Confirmed tours
- Get matched & compare top deals
- Expert help, no pressure
- No added fees
Estimated value based on Jome data, T&C apply
Why tour with Jome?
- No pressure toursTour at your own pace with no sales pressure
- Expert guidanceGet insights from our home buying experts
- Exclusive accessSee homes and deals not available elsewhere
Jome is featured in
- Condo
- Ready by April 2026
- $1461.12/sqft
- South facing
Home description
SIX88 Sarasota presents a rare opportunity to live the waterfront lifestyle you’ve always imagined. Nestled along 80 feet of private shoreline in the exclusive neighborhood of Golden Gate Point, this boutique condominium offers just ten architecturally refined residences.
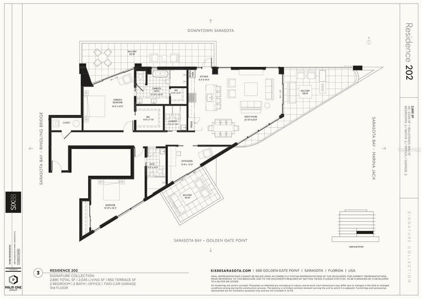
Residence 202, part of the Signature Collection, features 2,045 square feet of interior space and an expansive 850-square-foot wraparound terrace—perfect for seamless indoor-outdoor living. Enjoy sweeping views of Sarasota Bay and the downtown skyline through floor-to-ceiling windows that flood the home with natural light, highlighting its modern elegance and coastal charm. Interior finishes include Italian flat-panel cabinetry, large-format porcelain tile, panel-ready stainless steel appliances, and recessed contemporary trim. A private oversized two-car garage with an optional lift system adds both convenience and distinction.
Amenities evoke a private waterfront resort, including a rooftop terrace for sunset views, jetted swim spa, fitness center, marina lounge with boat slips and paddleboard launch, and a dramatic lobby with cascading waterfall feature.
Under construction with delivery on schedule for January 2026, we invite you to contact our sales team for a private hard hat tour and in-person appointment at our sales gallery conveniently located at 625 S Orange Ave to experience this extraordinary waterfront property firsthand—where the views of the bay and skyline come to life. Visit Six88sarasota.
COLDWELL BANKER REALTY, MLS A4657505
May also be listed on the The One Palm Group website
Information last verified by Jome: Yesterday at 10:23 AM (February 15, 2026)
Home highlights
Book your tour. Save an average of $18,473. We'll handle the rest.
We collect exclusive builder offers, book your tours, and support you from start to housewarming.
- Confirmed tours
- Get matched & compare top deals
- Expert help, no pressure
- No added fees
Estimated value based on Jome data, T&C apply
Home details
- Property status:
- Under construction
- Neighborhood:
- Golden Gate Point
- Lot size (acres):
- 0.59
- Size:
- 2,045 sqft
- Stories:
- 10
- Beds:
- 2
- Baths:
- 2
- Garage spaces:
- 2
- Facing direction:
- South
Construction details
- Builder Name:
- The One Palm Group
- Completion Date:
- April, 2026
- Year Built:
- 2025
- Roof:
- Membrane Roofing, Concrete Roofing
Home features & finishes
- Appliances:
- Exhaust FanIce MakerSprinkler System
- Construction Materials:
- StuccoBlockConcrete
- Cooling:
- Central Air
- Flooring:
- Tile FlooringHardwood Flooring
- Foundation Details:
- Slab
- Garage/Parking:
- ParkingDoor OpenerAssigned parkingGarageCovered Garage/ParkingAttached GarageCar Charging Stations
- Home amenities:
- ENERGY STAR Certified
- Interior Features:
- Ceiling-HighWalk-In ClosetBlindsSliding DoorsStorageTray Ceiling
- Kitchen:
- DishwasherMicrowave OvenOvenRefrigeratorDisposalBuilt-In OvenFreezerCooktopKitchen Range
- Laundry facilities:
- DryerWasherUtility/Laundry Room
- Lighting:
- Exterior LightingLightingSecurity LightsStreet Lights
- Pets:
- Pets AllowedCat(s) Only AllowedDog(s) Only Allowed
- Property amenities:
- SidewalkBalconyDeckStorage BuildingLandscapingElevatorSmart Home System
- Rooms:
- Den RoomOffice/StudyDining RoomFamily RoomLiving RoomOpen Concept Floorplan
- Security system:
- Fire Alarm SystemFire Sprinkler SystemSecurity SystemExterior Security Light(s)Smoke Detector

Get a consultation with our New Homes Expert
- See how your home builds wealth
- Plan your home-buying roadmap
- Discover hidden gems
Utility information
- Heating:
- Electric Heating, Zoned Heating, Water Heater, Gas Heating, Humidity Control
- Utilities:
- Electricity Available, Natural Gas Available, Underground Utilities, Phone Available, Cable Available, Water Available

Community details
SIX88
by The One Palm Group, Sarasota, FL
- 2 homes
- 2,045 - 2,088 sqft
View SIX88 details
Community amenities
- City View
- Fitness Center/Exercise Area
- Club House
- Gated Community
- Community Pool
- Fishing Pond
- Elevator
- Dock
- Sidewalks Available
- Waterfront View
More homes in SIX88
- Home at address 688 Golden Gate Pt, Unit 201, Sarasota, FL 34236

Home
$2,988,000
- 3 bd
- 3 ba
- 2,088 sqft
688 Golden Gate Pt, Unit 201, Sarasota, FL 34236
About the builder - The One Palm Group
Neighborhood
Home address
- Neighborhood:
- Golden Gate Point
- City:
- Sarasota
Schools in Sarasota County School District
- Grades PK-PKPublicchildren first1.4 mi1723 n orange avena
GreatSchools’ Summary Rating calculation is based on 4 of the school’s themed ratings, including test scores, student/academic progress, college readiness, and equity. This information should only be used as a reference. Jome is not affiliated with GreatSchools and does not endorse or guarantee this information. Please reach out to schools directly to verify all information and enrollment eligibility. Data provided by GreatSchools.org © 2025
Places of interest
Getting around
11 nearby routes: 11 bus, 0 rail, 0 otherAir quality
Noise level
A Soundscore™ rating is a number between 50 (very loud) and 100 (very quiet) that tells you how loud a location is due to environmental noise.

Considering this home?
Our expert will guide your tour, in-person or virtual
Need more information?
Text or call (888) 486-2818
Financials
Estimated monthly payment
Let us help you find your dream home
How many bedrooms are you looking for?
Similar homes nearby
Recently added communities in this area
Nearby communities in Sarasota
New homes in nearby cities
More New Homes in Sarasota, FL
COLDWELL BANKER REALTY, MLS A4657505
Based on information submitted to the MLS GRID as of 10/21/2024 2:31 PM CDT. All data is obtained from various sources and may not have been verified by broker or MLS GRID. Supplied Open House Information is subject to change without notice. All information should be independently reviewed and verified for accuracy. Properties may or may not be listed by the office/agent presenting the information. Some IDX listings have been excluded from this website. Properties displayed may be listed or sold by various participants in the MLS. IDX information is provided exclusively for personal, non-commercial use, and may not be used for any purpose other than to identify prospective properties consumers may be interested in purchasing. Information is deemed reliable but not guaranteed. Use of the MLS GRID Data may be subject to an end user license agreement prescribed by the Member Participant’s applicable MLS if any and as amended from time to time. The Digital Millennium Copyright Act of 1998, 17 U.S.C. § 512 (the “DMCA”) provides recourse for copyright owners who believe that material appearing on the Internet infringes their rights under U.S. copyright law. If you believe in good faith that any content or material made available in connection with our website or services infringes your copyright, you (or your agent) may send us a notice requesting that the content or material be removed, or access to it blocked. Notices must be sent in writing by email to DMCAnotice@MLSGrid.com. The DMCA requires that your notice of alleged copyright infringement include the following information: (1) description of the copyrighted work that is the subject of claimed infringement; (2) description of the alleged infringing content and information sufficient to permit us to locate the content; (3) contact information for you, including your address, telephone number and email address; (4) a statement by you that you have a good faith belief that the content in the manner complained of is not authorized by the copyright owner, or its agent, or by the operation of any law; (5) a statement by you, signed under penalty of perjury, that the information in the notification is accurate and that you have the authority to enforce the copyrights that are claimed to be infringed; and (6) a physical or electronic signature of the copyright owner or a person authorized to act on the copyright owner’s behalf. Failure to include all of the above information may result in the delay of the processing of your complaint. Listing Information presented by local MLS brokerage: NewHomesMate LLC, DBA Jome (888) 486-2818
Read moreLast checked Feb 16, 3:10 am
- Jome
- New homes search
- Florida
- Tampa Bay Area
- Sarasota County
- Sarasota
- SIX88
- 688 Golden Gate Pt, Unit 202, Sarasota, FL 34236




























