



Book your tour. Save an average of $18,473. We'll handle the rest.
- Confirmed tours
- Get matched & compare top deals
- Expert help, no pressure
- No added fees
Estimated value based on Jome data, T&C apply
- 5 bd
- 3.5 ba
- 3,060 sqft
5217 Bee Balm St, Lake Hamilton, FL 33851
Why tour with Jome?
- No pressure toursTour at your own pace with no sales pressure
- Expert guidanceGet insights from our home buying experts
- Exclusive accessSee homes and deals not available elsewhere
Jome is featured in
- Single-Family
- $590/annual HOA
- 744 days on Jome
Home description
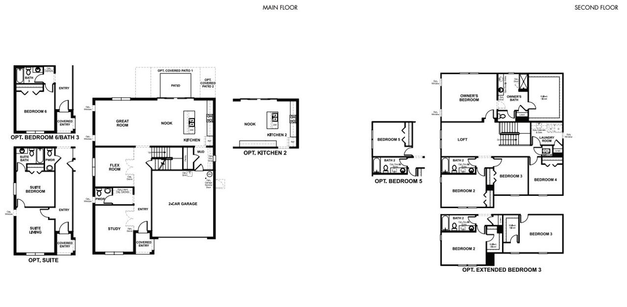
Explore this must-see Ammolite model home! Included features: an inviting covered entry; a spacious great room; an open dining area; an alternate kitchen layout kitchen offering 42" white cabinets, quartz countertops, stainless-steel appliances, a walk-in pantry and a center island; a lavish primary suite showcasing a private bath and a generous walk-in closet; a convenient laundry and a covered patio.
May also be listed on the Richmond American Homes website
Information last verified by Jome: Friday at 2:24 PM (November 8, 2024)
Home highlights
Nature preserve in Kissimmee with boardwalks, paddling trails, and historic sites near family-friendly neighborhoods.
Book your tour. Save an average of $18,473. We'll handle the rest.
We collect exclusive builder offers, book your tours, and support you from start to housewarming.
- Confirmed tours
- Get matched & compare top deals
- Expert help, no pressure
- No added fees
Estimated value based on Jome data, T&C apply
Home details
- Property status:
- Not available
- Size:
- 3,060 sqft
- Stories:
- 2
- Beds:
- 5
- Baths:
- 3.5
- Garage spaces:
- 2
Construction details
- Builder Name:
- Richmond American Homes
Home features & finishes
- Garage/Parking:
- GarageAttached Garage
- Interior Features:
- Ceiling-HighWalk-In ClosetLoft
- Laundry facilities:
- Utility/Laundry Room
- Property amenities:
- PatioPorch
- Rooms:
- Powder RoomDining RoomFamily RoomPrimary Bedroom Upstairs

Get a consultation with our New Homes Expert
- See how your home builds wealth
- Plan your home-buying roadmap
- Discover hidden gems

Community details
Seasons at Scenic Terrace
by Richmond American Homes, Lake Hamilton, FL
- 19 homes
- 9 plans
- 1,450 - 3,030 sqft
View Seasons at Scenic Terrace details
Community amenities
- Multigenerational Homes Available
More homes in Seasons at Scenic Terrace
Floor plans in Seasons at Scenic Terrace
About the builder - Richmond American Homes
Neighborhood
Home address
- City:
- Lake Hamilton
- County:
- Polk
- Zip Code:
- 33851
Schools in Polk County School District
- Grades M-MPublicscenic terrace k-81.0 mi2799 sr 17na
GreatSchools’ Summary Rating calculation is based on 4 of the school’s themed ratings, including test scores, student/academic progress, college readiness, and equity. This information should only be used as a reference. Jome is not affiliated with GreatSchools and does not endorse or guarantee this information. Please reach out to schools directly to verify all information and enrollment eligibility. Data provided by GreatSchools.org © 2025
Places of interest
Getting around
Noise level
A Soundscore™ rating is a number between 50 (very loud) and 100 (very quiet) that tells you how loud a location is due to environmental noise.
Natural hazards risk
Climate hazards can impact homes and communities, with risks varying by location. These scores reflect the potential impact of natural disasters and climate-related risks on Polk County
Provided by FEMA

Considering this home?
Our expert will guide your tour, in-person or virtual
Need more information?
Text or call (888) 486-2818
Financials
Let us help you find your dream home
How many bedrooms are you looking for?
Similar homes nearby
Recently added communities in this area
Nearby communities in Lake Hamilton
New homes in nearby cities
More New Homes in Lake Hamilton, FL
- Jome
- New homes search
- Florida
- Greater Orlando Area
- Polk County
- Lake Hamilton
- Seasons at Scenic Terrace
- 5217 Bee Balm St, Lake Hamilton, FL 33851







































