



Book your tour. Save an average of $18,473. We'll handle the rest.
- Confirmed tours
- Get matched & compare top deals
- Expert help, no pressure
- No added fees
Estimated value based on Jome data, T&C apply
- 3 bd
- 2 ba
- 1,700 sqft
824 Cedar Slough Dr, Jacksonville, FL 32220
Why tour with Jome?
- No pressure toursTour at your own pace with no sales pressure
- Expert guidanceGet insights from our home buying experts
- Exclusive accessSee homes and deals not available elsewhere
Jome is featured in
- Single-Family
- $135/quarterly HOA
- 758 days on Jome
Home description
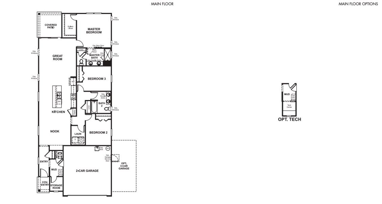
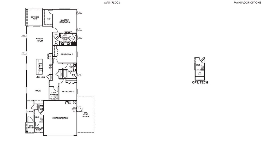
Explore this must-see Fraser model home! Included features: an inviting covered entry; a tech center; a roomy nook; a well-appointed kitchen boasting a pantry and a center island; an expansive great room; an impressive primary suite showcasing a generous walk-in closet and a private bath with double sinks, tile flooring and a linen closet; a convenient laundry; a covered patio and a 2-car garage. This home also offers additional windows in select rooms.
May also be listed on the Richmond American Homes website
Information last verified by Jome: Friday at 2:08 PM (November 8, 2024)
Book your tour. Save an average of $18,473. We'll handle the rest.
We collect exclusive builder offers, book your tours, and support you from start to housewarming.
- Confirmed tours
- Get matched & compare top deals
- Expert help, no pressure
- No added fees
Estimated value based on Jome data, T&C apply
Home details
- Property status:
- Not available
- Neighborhood:
- Southside
- Size:
- 1,700 sqft
- Stories:
- 1
- Beds:
- 3
- Baths:
- 2
- Garage spaces:
- 2
Construction details
- Builder Name:
- Richmond American Homes
- Roof:
- Roof Gutter
Home features & finishes
- Appliances:
- Sprinkler System
- Garage/Parking:
- GarageAttached Garage
- Interior Features:
- Walk-In Closet
- Kitchen:
- RefrigeratorGas Cooktop
- Laundry facilities:
- DryerWasherUtility/Laundry Room
- Property amenities:
- BasementPatioPorch
- Rooms:
- Primary Bedroom On MainDining RoomFamily RoomPrimary Bedroom Downstairs

Get a consultation with our New Homes Expert
- See how your home builds wealth
- Plan your home-buying roadmap
- Discover hidden gems

Community details
Seasons at Marietta Cove
by Richmond American Homes, Jacksonville, FL
- 9 homes
- 4 plans
- 1,570 - 2,160 sqft
View Seasons at Marietta Cove details
More homes in Seasons at Marietta Cove
- Home at address 968 Cedar Slough Dr, Jacksonville, FL 32220

Fraser
$277,997
- 3 bd
- 2 ba
- 1,700 sqft
968 Cedar Slough Dr, Jacksonville, FL 32220
- Home at address 964 Cedar Slough Dr, Jacksonville, FL 32220

Beech
$297,206
- 3 bd
- 2 ba
- 1,570 sqft
964 Cedar Slough Dr, Jacksonville, FL 32220
- Home at address 1031 Cedar Slough Dr, Jacksonville, FL 32220

Fraser
$299,997
- 3 bd
- 2 ba
- 1,700 sqft
1031 Cedar Slough Dr, Jacksonville, FL 32220
- Home at address 980 Cedar Slough Dr, Jacksonville, FL 32220

Lynwood
$319,997
- 4 bd
- 3 ba
- 2,110 sqft
980 Cedar Slough Dr, Jacksonville, FL 32220
- Home at address 8277 Cedar Run Ln, Jacksonville, FL 32220

Lynwood
$324,997
- 4 bd
- 3 ba
- 2,110 sqft
8277 Cedar Run Ln, Jacksonville, FL 32220
- Home at address 1016 Cedar Slough Dr, Jacksonville, FL 32220

Lynwood
$326,997
- 4 bd
- 2.5 ba
- 2,110 sqft
1016 Cedar Slough Dr, Jacksonville, FL 32220
Floor plans in Seasons at Marietta Cove
About the builder - Richmond American Homes
Neighborhood
Home address
- Neighborhood:
- Southside
- City:
- Jacksonville
Schools in Duval County School District
- Grades 02-12Privateeunice christian school0.9 mi217 devoe stna
GreatSchools’ Summary Rating calculation is based on 4 of the school’s themed ratings, including test scores, student/academic progress, college readiness, and equity. This information should only be used as a reference. Jome is not affiliated with GreatSchools and does not endorse or guarantee this information. Please reach out to schools directly to verify all information and enrollment eligibility. Data provided by GreatSchools.org © 2025
Places of interest
Getting around
Air quality
Noise level
A Soundscore™ rating is a number between 50 (very loud) and 100 (very quiet) that tells you how loud a location is due to environmental noise.

Considering this home?
Our expert will guide your tour, in-person or virtual
Need more information?
Text or call (888) 486-2818
Financials
Let us help you find your dream home
How many bedrooms are you looking for?
Similar homes nearby
Recently added communities in this area
Nearby communities in Jacksonville
New homes in nearby cities
More New Homes in Jacksonville, FL
- Jome
- New homes search
- Florida
- Jacksonville Metropolitan Area
- Duval County
- Jacksonville
- Seasons at Marietta Cove
- 824 Cedar Slough Dr, Jacksonville, FL 32220


























