














Book your tour. Save an average of $18,473. We'll handle the rest.
- Confirmed tours
- Get matched & compare top deals
- Expert help, no pressure
- No added fees
Estimated value based on Jome data, T&C apply














Vickery by Southwyck Homes
5829 Vickery St, Unit E6, Cumming, GA 30040
Why tour with Jome?
- No pressure toursTour at your own pace with no sales pressure
- Expert guidanceGet insights from our home buying experts
- Exclusive accessSee homes and deals not available elsewhere
Jome is featured in
Available homes
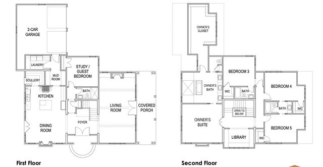
Plans
Community highlights
Welcome to Vickery, a single-family home community by Southwyck Homes located in 5829 Vickery St, Unit E6, Cumming, GA 30040. Currently, the community status is Selling. With 3 homes, including 3 move-in ready options. Vickery homes size range from 3,441 to 9,952 square feet on various lot sizes. Listings are available from $1,250,000 to $1,275,000.
Popular North Georgia lake offering boating, fishing, and lakeside living near metro Atlanta and mountain getaways.
Book your tour. Save an average of $18,473. We'll handle the rest.
We collect exclusive builder offers, book your tours, and support you from start to housewarming.
- Confirmed tours
- Get matched & compare top deals
- Expert help, no pressure
- No added fees
Estimated value based on Jome data, T&C apply
Community details
Community details
- Builder(s):
- Southwyck Homes
- Home type:
- Single-Family
- Selling status:
- Selling
- School district:
- Forsyth County School District
Community amenities
- Dining Nearby
- Energy Efficient
- Playground
- Lake Access
- Tennis Courts
- Park Nearby
- Community Garden
- Fishing Pond
- Sidewalks Available
- Open Greenspace
- Walking, Jogging, Hike Or Bike Trails
- Fire Pit
- Shopping Nearby

Get a consultation with our New Homes Expert
- See how your home builds wealth
- Plan your home-buying roadmap
- Discover hidden gems
About the builder - Southwyck Homes
Neighborhood
Community address
Schools in Forsyth County School District
GreatSchools’ Summary Rating calculation is based on 4 of the school’s themed ratings, including test scores, student/academic progress, college readiness, and equity. This information should only be used as a reference. Jome is not affiliated with GreatSchools and does not endorse or guarantee this information. Please reach out to schools directly to verify all information and enrollment eligibility. Data provided by GreatSchools.org © 2025
Places of interest
Getting around
Air quality
Noise level
A Soundscore™ rating is a number between 50 (very loud) and 100 (very quiet) that tells you how loud a location is due to environmental noise.
Natural hazards risk
Climate hazards can impact homes and communities, with risks varying by location. These scores reflect the potential impact of natural disasters and climate-related risks on Forsyth County
Provided by FEMA

Considering this community?
Our expert will guide your tour, in-person or virtual
Need more information?
Text or call (888) 486-2818
Financials
Estimated monthly payment
Vickery by Southwyck Homes
Vickery’s distinctive live-work-play setting serves as the ideal backdrop to historically inspired architecture and artistic garden landscapes that put a unique spin on the concept of luxury living.
Boasting the feel of a true urban community in the heart of the suburbs, the highly sought-after Vickery is a place unlike any other. Residents enjoy access to excellent Forsyth County schools and terrific amenities that include community pool, lighted tennis courts, multi-purpose fields, community fire pit, playground, hike and bike trails, greenspaces, neighborhood parks, fishing ponds, and much more beyond the threshold.
Sidewalk-lined streets are peppered with a wide variety of one-of-a-kind homes that embody an air of imagination, with Tad Braswell, Southwyck Principal, taking lead on creative development. With his involvement on original concept design for the community, Southwyck’s design approach for the remaining homes will ring true to surrounding historic influences, and no two homes will be built exactly alike.






























