
- 1communities on Jome
- 1homes on Jome



















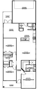
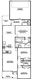
With a foundation built on decades of construction expertise, The Emmer Group has been creating homes and apartments across Florida since 1954. The company's design philosophy centers on balancing modern comfort with functional living, offering personalized de...sign choices and flexible layouts to suit individual lifestyles. Homes are constructed on durable monolithic concrete slab foundations and incorporate a suite of energy-efficient features, such as tankless water heaters, to ensure long-term value and lower utility costs. Having delivered over 8,000 homes in more than 100 communities, The Emmer Group has established a reputation for developing quality new construction homes. This longstanding commitment to building thoughtfully designed new construction homes and communities is evident in their resort-style developments throughout the state.

Need guidance?
Get expert help finding your perfect home
Select a location to see homes & communities by The Emmer Group
Communities
Homes
Plans
*Pricing and availability are subject to change.



















































